Версия для слабовидящих

Постановление №1091-п от 18.06.2019

 Калужская область

АДМИНИСТРАЦИЯ ГОРОДА ОБНИНСКА

ПОСТАНОВЛЕНИЕ

18.06.2019 № 1091-п

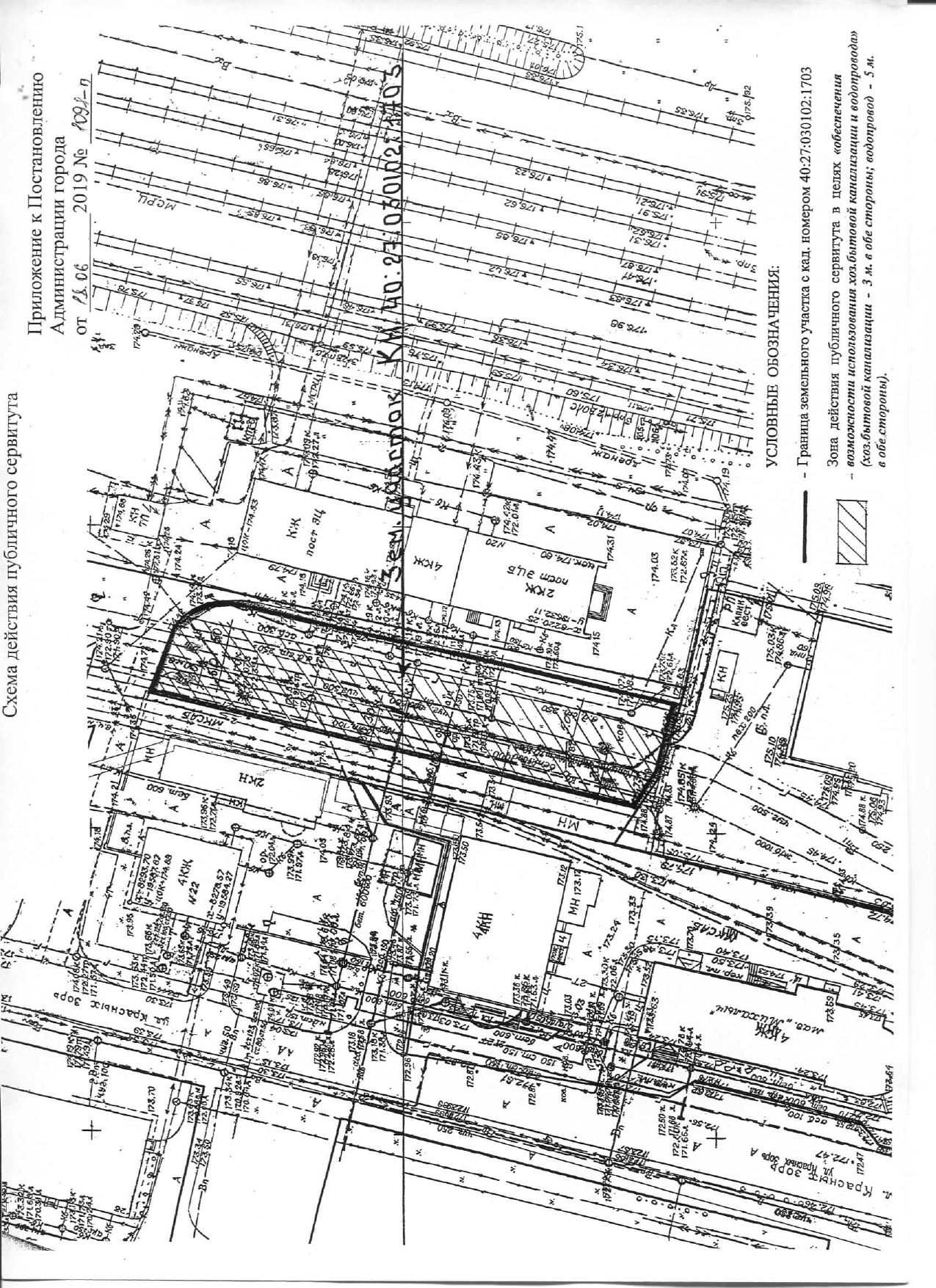
Об установлении публичного сервитута на земельном участке с кадастровым номером 40:27:030102:1703

В целях обеспечения интересов местного самоуправления, на основании градостроительной документации, Заключения о разрешенном использовании земельного участка, ст. 23, 39.20 Земельного кодекса Российской Федерации (в редакции от 25.12.2018), ст. 28, 31 Федерального закона «О приватизации государственного и муниципального имущества» от 21 декабря 2001 года N 178-ФЗ (ред. от 01.04.2019)

ПОСТАНОВЛЯЮ:

1. Установить, что Муниципальное образование «Город Обнинск» имеет право ограниченного пользования земельным участком с кадастровым номером 40:27:030102:1703, предоставляемым в собственность ООО «КапИнвест», в границах, указанных на схеме действия публичного сервитута, прилагаемой к настоящему постановлению, для:

- обеспечения возможности использования хоз.бытовой канализации и водопровода.

Установить право ограниченного пользования земельным участком сроком на 49 лет.

2. Обязать ООО «КапИнвест» осуществлять доступ эксплуатирующих организаций на земельный участок в течение рабочего времени правообладателя земельного участка, а в случаях необходимости предотвращения аварии или устранения ее последствий, незамедлительно.

3.Настоящее постановление опубликовать в официальном печатном издании «Города Обнинска», на официальном сайте муниципального образования «Город Обнинск» www.admobninsk.ru в сети «Интернет», на официальном сайте Российской Федерации www.torgi.gov.ru в сети «Интернет».

4. Управлению имущественных и земельных отношений Администрации города проинформировать покупателя, указанного в п. 1 настоящего постановления, о настоящем решении и осуществить необходимые действия для государственной регистрации сервитута в Едином государственном реестре недвижимости.

Глава Администрации города В.В.Шапша

Приложения

Дата публикации: 19.06.2019 22:02